Listing Tools

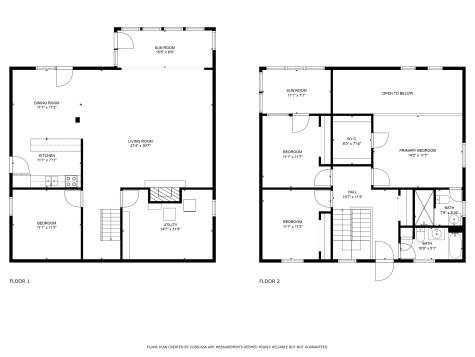
Unique 2151sqft 4-bedroom 2 bath contemporary post & beam home (with 5BR septic) with deeded association beach rights on Blueberry Pond (Millstone Village Association). Built with a reverse floor plan and a top to bottom back wall full of windows overlooking Blueberry Pond, this house has seasonal views now, but used to have year round water views that could be brougth back with proper pruning. Very open floor plan with high vaulted beamed ceiling, huge living room with fireplace, 2 french doors leading to the back deck and its very private yard. One of the upstairs bedroom has its own sunroom. This house will require some updating but has huge potential. Title V inspection attached in documents. Septic system was designed for 5 bedrooms and installed in 1993. Engineering plan attached. Weil McLain oil burner was updated in 2009.

Property Details of 277 Lund Farm Way

Map Location

Driving Directions

Listed by Melanie Cauchon of Melanie Cauchon Real Estate (508-776-5378)

broker reciprocity The data relating to real estate for sale on this site comes from the Broker Reciprocity (BR) of the Cape Cod & Islands Multiple Listing Service, Inc. Summary or thumbnail real estate listings held by brokerage firms other than Shoreland Realty are marked with the BR Logo and detailed information about them includes the name of the listing broker. Neither the listing broker nor Shoreland Realty shall be responsible for any typographical errors, misinformation, or misprints and shall be held totally harmless.

This site was last updated November 11, 2025 6:51 AM EST. All properties are subject to prior sale, changes, or withdrawal.

Shoreland Realty has chosen to display only certain towns and/or types or styles of properties. This site may not show all listings that are available through the Cape Cod & Islands Multiple Listing Service, Inc.

Hi there! How can we help you?

Contact us using the form below or give us a call.

Send Us A Message:

I agree to receive marketing and customer service calls and text messages from Shoreland Realty. To opt out, you can reply 'stop' at any time or click the unsubscribe link in the emails. Consent is not a condition of purchase. Msg/data rates may apply. Msg frequency varies. Privacy Policy.

Do not fill in this field:

This site is protected by reCAPTCHA and the Google Privacy Policy and Terms of Service apply.

Hi there! How can we help you?

Contact us using the form below or give us a call.

Send Us A Message:

Do not fill in this field:

This site is protected by reCAPTCHA and the Google Privacy Policy and Terms of Service apply.

Hi there! How can we help you?

Contact us using the form below or give us a call.

Send Us A Message:

Do not fill in this field:

This site is protected by reCAPTCHA and the Google Privacy Policy and Terms of Service apply.

Do not fill in this field:

This site is protected by reCAPTCHA and the Google Privacy Policy and Terms of Service apply.

Do not fill in this field:

This site is protected by reCAPTCHA and the Google Privacy Policy and Terms of Service apply.

Do not fill in this field:

This site is protected by reCAPTCHA and the Google Privacy Policy and Terms of Service apply.

$

Do not fill in this field:

This site is protected by reCAPTCHA and the Google Privacy Policy and Terms of Service apply.